| Status de disponibilidade: | |
|---|---|
| Quantidade: | |
Introdução do misturador de entrada lateral tipo P-Belt:
A instalação de um misturador de entrada lateral no tanque de óleo, é utilizado para misturar óleos ou outro meio e assim atingir a finalidade de harmonização, transferência de calor, homogeneização e prevenção de acúmulo de sedimentos.A utilização deste equipamento traz muitas vantagens, como pequeno investimento, operação conveniente, alta eficiência, baixo consumo de energia, baixa eletricidade estática gerada em médio e garantia de qualidade do produto.
O misturador de entrada lateral tipo P-Belt pode ser instalado em tanque de petróleo, tanque de lubrificação, tambor de óleo combustível, tanque de parafina, tanque de asfalto (para asfalto de borracha pesado, betume de petróleo básico, asfalto de grau A) e alguns tanques de armazenamento para aditivos e outros meio que precisa ser agitado.
Material do misturador de entrada lateral tipo correia para tanque de armazenamento
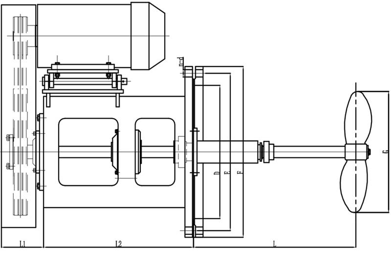
Estrutura do misturador de entrada lateral tipo correia para tanque de armazenamento
Existem várias formas estruturais de misturadores de entrada lateral no mercado.Os clientes podem escolher um adequado de acordo com as diferentes aplicações.A transmissão do agitador de entrada lateral é acionada por polia.Diferentes vedações podem ser selecionadas de acordo com diferentes aplicações.Como selo mecânico e selo de embalagem.Diferentes formas de vedação também podem ser combinadas.
Sobre o misturador de entrada lateral de rack de suporte duplo: Esta estrutura não é complicada.É composto principalmente de motor, redutor, correia, rack de suporte duplo, eixo de mistura, flange de montagem, impulsores de mistura, selo mecânico e assim por diante.
Qual é a diferença entre um empurrador e uma entrada lateral?
O agitador de hélice é geralmente submerso na água, como no uso no tanque de pré-tratamento no projeto de biogás, na mistura e agitação na estação de tratamento de esgoto e no empurrão da vala de oxidação.O misturador lateral é usado principalmente na agitação do material do tanque de reação, difusão de calor, prevenção de precipitação de material, etc., como um misturador lateral externo do tanque de reação de biogás.
JiangSu KeHeng Petrochemical & Electrical Machinery Co., Ltd.é especializada na fabricação de misturadores submersíveis e misturadores laterais para tanques de reação de biogás.Por favor, ligue-nos se tiver outras dúvidas.
Hot Tags: misturador de entrada lateral tipo correia para tanque de armazenamento, China, fabricantes, fornecedores, fábrica, comprar, personalizado, cotação, feito na China
Introdução do misturador de entrada lateral tipo P-Belt:
A instalação de um misturador de entrada lateral no tanque de óleo, é utilizado para misturar óleos ou outro meio e assim atingir a finalidade de harmonização, transferência de calor, homogeneização e prevenção de acúmulo de sedimentos.A utilização deste equipamento traz muitas vantagens, como pequeno investimento, operação conveniente, alta eficiência, baixo consumo de energia, baixa eletricidade estática gerada em médio e garantia de qualidade do produto.
O misturador de entrada lateral tipo P-Belt pode ser instalado em tanque de petróleo, tanque de lubrificação, tambor de óleo combustível, tanque de parafina, tanque de asfalto (para asfalto de borracha pesado, betume de petróleo básico, asfalto de grau A) e alguns tanques de armazenamento para aditivos e outros meio que precisa ser agitado.
Material do misturador de entrada lateral tipo correia para tanque de armazenamento
Estrutura do misturador de entrada lateral tipo correia para tanque de armazenamento
Existem várias formas estruturais de misturadores de entrada lateral no mercado.Os clientes podem escolher um adequado de acordo com as diferentes aplicações.A transmissão do agitador de entrada lateral é acionada por polia.Diferentes vedações podem ser selecionadas de acordo com diferentes aplicações.Como selo mecânico e selo de embalagem.Diferentes formas de vedação também podem ser combinadas.
Sobre o misturador de entrada lateral de rack de suporte duplo: Esta estrutura não é complicada.É composto principalmente de motor, redutor, correia, rack de suporte duplo, eixo de mistura, flange de montagem, impulsores de mistura, selo mecânico e assim por diante.
Qual é a diferença entre um empurrador e uma entrada lateral?
O agitador de hélice é geralmente submerso na água, como no uso no tanque de pré-tratamento no projeto de biogás, na mistura e agitação na estação de tratamento de esgoto e no empurrão da vala de oxidação.O misturador lateral é usado principalmente na agitação do material do tanque de reação, difusão de calor, prevenção de precipitação de material, etc., como um misturador lateral externo do tanque de reação de biogás.
JiangSu KeHeng Petrochemical & Electrical Machinery Co., Ltd.é especializada na fabricação de misturadores submersíveis e misturadores laterais para tanques de reação de biogás.Por favor, ligue-nos se tiver outras dúvidas.
Hot Tags: misturador de entrada lateral tipo correia para tanque de armazenamento, China, fabricantes, fornecedores, fábrica, comprar, personalizado, cotação, feito na China